Nouveau

Tekhnê et JAP sont Lieux F.AU.VES

30 juin 2022

Lieux FAUVES est une agence d’architecture, d’urbanisme et de paysage née du rapprochement entre JAP et TEKHNÊ. Les deux structures d’origine, qui partagent leur engagement historique au service d’une conception éco-responsable s’associent. Face à la refonte des modèles sociaux et économique, à la redistribution de la donne territoriale, au développement des modèles coopératifs, nous avons construit une maison commune à la fois performante, expérimentée et dynamique : des Lieux pour Faire une Architecture et un Urbanisme Vivant, Éthique et Soutenable. Lieux FAUVES réunit 8 associés et 40 collaborateurs, architectes, urbanistes, paysagistes, dessinateurs, au service du projet, de la réalisation, de la recherche et du développement.

Vous pouvez donc désormais suivre toutes les actualités de l’agence sur le site internet Lieux FAUVES.

Notre site internet !

25 juin 2022

Email : tekhne[AT]tekhne-architectes.com

Tekhnê – Siège Lyon
43 rue des Hérideaux
69008 Lyon

T 04 78 75 66 66

Tekhnê – Mayotte
18 Chemin de la Convalescence
97600 Mamoudzou
Voir sur une carte

 

Infos & Images

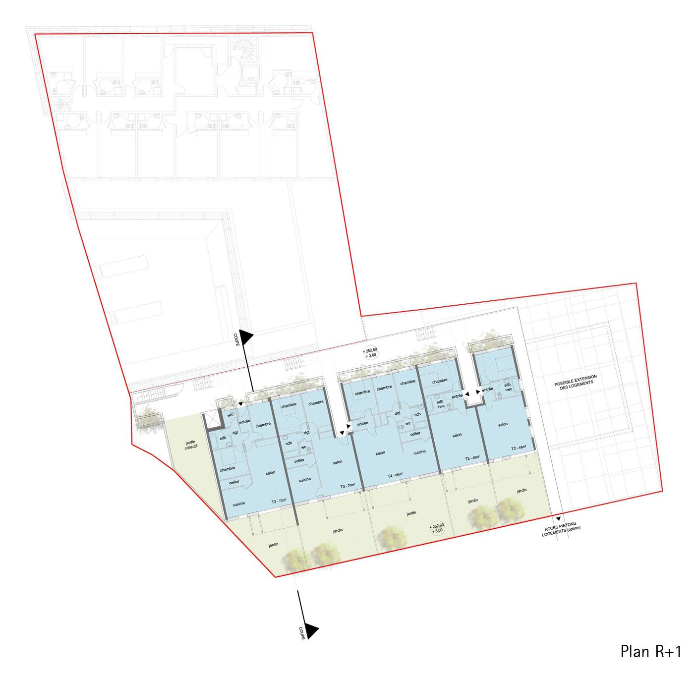
CHRS et 15 logements aidés BBC

Av. des Alpes, Bourgoin Jallieu (38)

Programme
Construction d’un centre d’hébergement et de résidentialisation social comprenant 20 studios et 5 appartements, salles d’activités, cuisine, bureaux, salle de réunion, et de 15 logements aidés.
Maîtrise d’ouvrage
OPAC 38
Maîtrise d’oeuvre
TEKHNÊ architecture et q.e.b
DPI, structure
ITF, fluides
BREA, VRD
DENIZOU, économie
EAI, acoustique
Surface
2807 m2 SHON, 2320m2 SHAB
Coûts
3 580 K€ HT dont 200K€ archéo
Dates / Livraison
2014

Projet BBC. Structure béton. Isolation par l’extérieur avec polystyrene + enduit et laine de roche + bardage. Menuiseries bois. Vitrage peu émissif (Uw = 1,4). Travail spécifique sur le confort intérieur (compris intimité) : vues et niveau d’éclairement naturel, hygrométrie, qualité sanitaire. Logements traversants : ventilation naturelle, apports solaires passifs.
Rupture des ponts thermiques par balcons désolidarisés et isolation extérieure.
Ventilation mécanique simple flux pour les logements et chaufferie collective bois pour les deux entités. Traitement des eaux de pluies : récupération par noues et puits d’infiltration.
Cep prévisionnel CHRS = 53 kWh/an.m2
Cep prévionnel logements = 57 kWh/an.m2

Description

Situé en entrée de ville, à proximité immédiate de la gare, le long du ruisseau du Bion, ce programme accueille un CHRS et des logements aidés.
Pour répondre à la nécessaire indépendance des 2 entités fonctionnelles, on profite de la topographie du site: le CHRS occupe le rez-d’avenue pendant que les logements sont installés au sud au-dessus d’une nappe de stationnement commune qui comble la différence de niveau avec le rez-de-gare, les mettant ainsi à R+1 par rapport au cœur d’îlot. L’accès public au CHRS est sur l’avenue, comme celui des parkings. Les logements sont distribués directement depuis le garage par un jeu d’escaliers et de passerelles qui forment avec des bandes plantées, un espace tampon filtrant les vis-à-vis.
Le positionnement bioclimatique est maximisé : les logements sont tous traversants nord-sud, avec les pièces de jour installées au sud bénéficiant des apports solaires passifs, et les chambres au nord.
L’écriture des façades obéit à 2 logiques: l’une extérieure selon laquelle les finitions minérales sont privilégiées pour créer des liens de politesse avec l’environnement de maisons de ville du quartier; l’autre intérieure, dans le cœur d’îlot, le long du ruisseau dont la ripisylve est généreuse, où les vêtures seront en bardage bois. Le socle du CHRS est traité comme un mur rideau, composé de panneaux vitrés et pleins colorés qui se prolongent sur les 2 faces du bâtiment d’angle, avec polychromie en camaïeu de tons chaud marquant le caractère public de l’établissement.