Nouveau

Tekhnê et JAP sont Lieux F.AU.VES

30 juin 2022

Lieux FAUVES est une agence d’architecture, d’urbanisme et de paysage née du rapprochement entre JAP et TEKHNÊ. Les deux structures d’origine, qui partagent leur engagement historique au service d’une conception éco-responsable s’associent. Face à la refonte des modèles sociaux et économique, à la redistribution de la donne territoriale, au développement des modèles coopératifs, nous avons construit une maison commune à la fois performante, expérimentée et dynamique : des Lieux pour Faire une Architecture et un Urbanisme Vivant, Éthique et Soutenable. Lieux FAUVES réunit 8 associés et 40 collaborateurs, architectes, urbanistes, paysagistes, dessinateurs, au service du projet, de la réalisation, de la recherche et du développement.

Vous pouvez donc désormais suivre toutes les actualités de l’agence sur le site internet Lieux FAUVES.

Notre site internet !

25 juin 2022

Email : tekhne[AT]tekhne-architectes.com

Tekhnê – Siège Lyon
43 rue des Hérideaux
69008 Lyon

T 04 78 75 66 66

Tekhnê – Mayotte
18 Chemin de la Convalescence
97600 Mamoudzou
Voir sur une carte

 

Infos & Images

35 logements Wilson et commerces en rdc

Place Wilson, Villeurbanne (69)

Programme
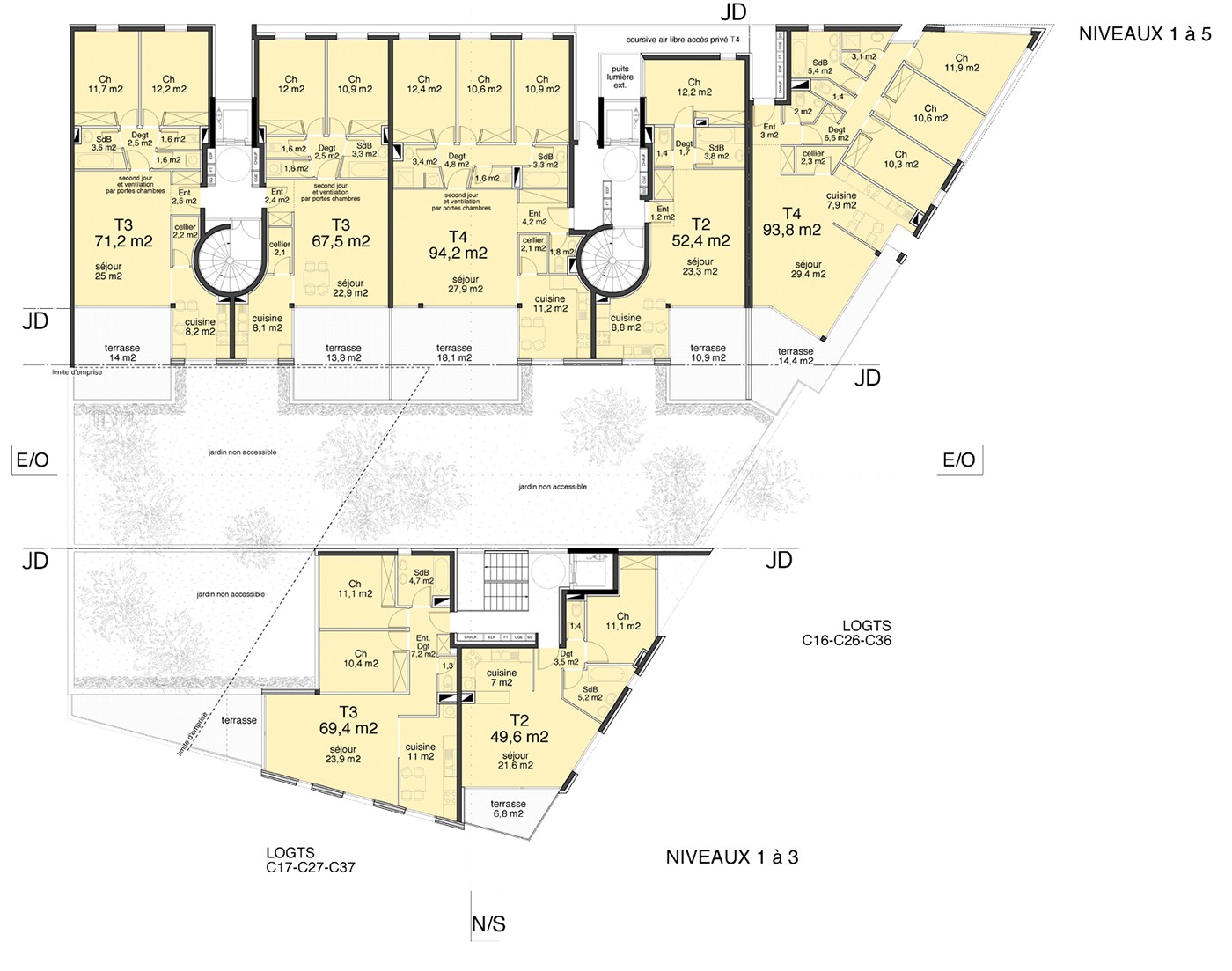
Construction d’un immeuble collectif de 35 logements en accession privée dans le cadre de la ZAC Charpennes-Wilson. Logements T2 au T5. Commerces en rdc - Jardin intérieur.
Maîtrise d’ouvrage
SIER Constructeur
Maîtrise d’oeuvre
TEKHNÊ, architecture et QEB
DPI, structure
ASTRIUS, fluides
GECO, économie
Surface
Logements : 3180 m² SHON, 2724 m² SHAB - Commerces : 950 m² SHON
Coûts
4 990 k€ HT soit 1200 € /m² SHON
Dates / Livraison
juin 2009

Logements traversants orientés nord-sud permettant le captage solaire hivernal dans les pièces de jour et la ventilation naturelle (free-cooling) estivale. Cages distributives conséquentes, éclairées naturellement et à l’air libre pour le plot sud… Larges balcons avec protections solaires en about de dalle. Structure lourde en B.A. isolée par l’extérieur 10 cm et RME ou panneaux Trespa. Rupteurs de ponts thermiques pour les balcons et les coursives. Sur-isolation des toitures terrasses (R=10m2.K/W). Menuiseries ext. mixte bois-alu. avec D.V. peu émissif (Uw=1,7W/m2.k). Raccordement chauffage sur réseau urbain. Terrasses visibles végétalisées. Récupération des E.P. pour l’arrosage du jardin intérieur. Locaux vélos en pied de cage immédiatement accessibles depuis la rue. Surfaces des lieux de production de déchets sur-dimensionnés (cuisines, celliers, stockages collectifs).

Description

Dernier maillon de la ZAC Charpennes / Wilson, ce projet de logement avec activité commerciale en rez-de-chaussée, occupe une situation stratégique dans le quartier : face à la place Wilson, en bordure du parc public Etienne Gagnaire. Cette situation, associée à la forme particulière de l’îlot confère à ce programme un enjeu de jalon urbain.
L’épannelage variable permet de raccorder les immeubles environnants. L’organisation spatiale tire partie d’une exposition nord/sud privilégiée, en composant avec les différentes directions urbaines, et en marquant l’angle par un mur à fruit. Les 2 plots reliés par le soubassement commercial installe une liaison visuelle entre place et parc, occupé par un jardin sur dalle support d’intimité et de fraîcheur.
Les façades nord sont fractionnées par des escaliers plus nombreux et des coursives qui permettent d’obtenir 100% de logements traversants, essentiels en ville pour le confort d’été. Elles présentent une résille de lames horizontales fixées sur cable, destinées à limiter le vis-à-vis avec les immeubles imposants de l’autre côté de la rue.
Au sud, les façades revêtues de panneaux en bois-résine, s’ouvrent généreusement sur le parc par des balcons protégés de stores screen installés en about de dalle pour une meilleure protection solaire.